
內墻系統
施工準備
技術準備
主體結構已分階段施工完畢,質量合格并已通過驗收。認真熟悉建筑施工圖紙,根據設計圖紙要求和國家現行規范及工藝規程編制施工方案并向班組進行技術交底,進行樣板間的施工。
每層樓面要彈出定位線,經復核符合設計圖紙要求,并辦理預檢手續。樣板間放線后經監理、業主驗收,如與結構不符時,可通過監理、業主共同洽商后進行適當的調整,變動較大處經設計認可。
由業主、監理、施工方共同做好材料的選樣、訂貨工作,并及時報監理、業主審核批準。
積極作好各項技術保障,在保證各項工程質量的前提下,各專業交叉施工立體作業,做好實時控制。
要準備好相關最新的規范、規程、標準和圖集。同時,要組織好員工學習新規范、新規程。
樣板施工計劃準備:主要工序必須以樣板(墻、間、層)引路,以利提高整體工程施工質量的水平。樣板施工計劃編制中除了高標準外,應突出現行規范、規程的特點,使樣板施工更具指導性。
現場準備
輕質條板運至現場并驗收完成,質量合格,資料齊全;
輕質條板安裝地點清理干凈,墻邊線測放且驗收完成;
安裝輔助材料:導向支撐撬棒、木楔、抹灰板、拖線板、切割機、鋼卡、射釘槍等相關機具準備就緒。
遇有水房間衛生間(浴室、淋浴間)、廚房設200高砼擋水坎,隔墻板立于砼擋水坎之上(詳見圖紙設計要求)。
施工方法
施工工藝及順序
清理基層→測量放線(含預留洞)→釘放鋼卡→隔墻條板安裝→處理洞口→處理板縫→質量檢驗→進行下一道工序施工
施工要點
清理:將預安裝隔墻板部位的頂板、墻面、地面上的灰渣雜物清理干凈,必須保證隔墻板接觸的砼結構面平整、密實;
彈線:根據圖紙要求,在頂板、底板彈出隔墻板的位置線。
濕潤:用油漆刷蘸水,在隔墻板的上端及側邊刷水,使其濕潤。
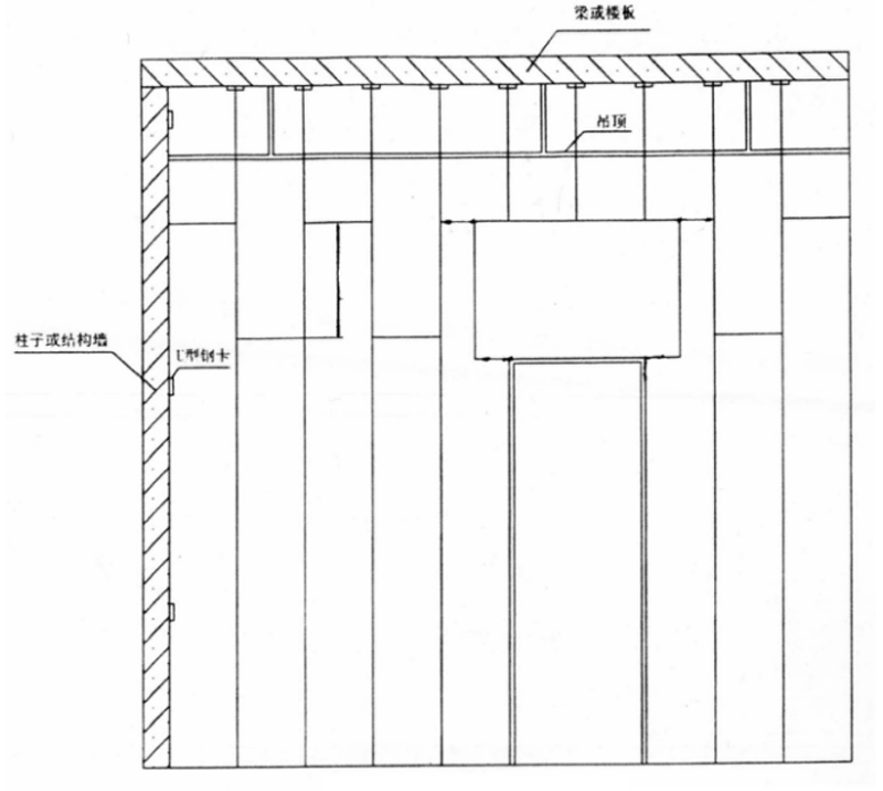
隔墻板安裝順序應從與墻的結合處開始,依次順序安裝。板側清刷浮灰,按地面位置線上返頂板,用射釘槍在兩板之間固定“U”型鋼卡,在樓板、梁下皮與條板拼接位置和柱表面沿條板高度三等分處,均安設U形扣件(U形扣件要求見附圖)。在墻面、頂面、側面滿刮膠粘劑成八字型,將板立起,一個人在一側推擠,另一個人在板下端用撬棍撬起板底端,將板頂起,板上端對準“U”型鋼卡內側,直至板與墻垂直擠緊,上下擠嚴,各粘接面膠粘劑飽滿外冒為止。用2m靠尺及塞尺測量板面的平整度,用2m托線板檢查板面的垂直度,檢查條板是否對準預先在地面和頂板上彈好的位置線,無誤后用木楔自底板底端擠緊頂實,但不能過緊,然后撤出撬棍。在用開刀將擠出的膠粘劑刮平,按上述方法依次安裝隔墻板。粘貼完畢的墻體板底用C20干硬性細石混凝土將板下口堵平,三天后撤去板下木楔,并用同強度等級的干硬性砂漿灌實。
板與板的連結,混凝土墻體按設計要求將“U”型鋼卡固定于相應部份的墻體上,每側固定點不少于三點。
板縫處理:隔墻板安裝三天后,檢查所有縫隙是否粘結好,有無裂縫。如出現裂縫應查明原因進行修補,已粘結良好的所有板縫,陰角縫應先清理浮灰,刮膠粘劑再貼50mm寬玻纖網格布,轉角隔墻在陰角處粘貼500mm寬玻纖布一層,壓實、粘牢,表面再用膠粘劑刮平。
接縫處理:
平面接縫:用專用膠粘劑粘貼兩層玻纖布,里層60mm寬,外層150mm寬,粘貼完成后將膠粘劑刮平刮凈
轉角接縫:在轉角處用專用膠粘劑粘貼200mm寬玻纖網格布條,干后用膩子刮平。
鋪設電線管、接線盒,安裝管卡、埋件:按電氣安裝圖找準位置劃出定位線,鋪設電線管、安裝接線盒。所有電線管必須順增強水泥空心條板的孔鋪設,嚴禁橫鋪和斜鋪。安裝接線盒,先在板面鉆孔擴孔(防止猛擊),再用扁鏟擴孔,孔要大小適度,要方正。孔內清理干凈,用膠粘劑穩定接線盒。按設計指定的辦法安裝水暖管卡和吊掛埋件。
門窗洞口邊板第一孔用C25混凝土灌實,墻板安裝后28天后才能進行下一道工序施工。
施工技術措施
隔墻板安裝之前,必須經質檢人員驗收合格,向現場監理報告后,方可使用;
安裝人員應對材料進行逐塊檢查,凡規格尺寸超出允許偏差、嚴重外觀缺陷的,禁止使用;
U型鋼卡應涂刷防銹漆進行防銹處理,必須按照要求的數量、規格、型號牢靠固定,不得少放、漏放與松動;
隔墻板安裝過程中,遇到管線需要開槽時,要用切割機切割,嚴禁隨意剔鑿;
質量要求
主控項目:
a.混凝土圓孔板的各項技術指標必須滿足有關標準所規定的要求。膠粘劑的配制原料的質量必須符合有關規定。
檢查方法:檢查產品合格證。
b.混凝土圓孔板其四邊的粘結必須牢固。
檢查方法:手振和觀察檢查。
c.吊掛點埋件必須牢固。每一工程項目需作吊掛力的測試,測試記錄應作為技術資料存檔。
檢查方法:檢查吊掛力測試記錄。
一般項目:
a.節點構造、構件位置、連接錨固方法,應全部符合設計要求。
檢查方法:觀察檢查。
b.隔墻板所有接縫處的粘結應牢固,應填塞密實,不應出現干縮裂縫。
檢查方法;觀察檢查。
c.門窗框與門窗框板之間用電焊連接時,焊縫的長度應大于或等于10mm,焊縫厚度不應小于4mm。焊縫表面平整,無燒傷、凹陷、焊瘤、裂紋、咬邊、氣孔和夾渣等缺陷,其焊點表面應凹進板面3mm。
檢查方法:觀察檢查。
d.玻纖網格帶(布)應沿板縫居中壓貼緊密,不應有皺折、翹邊、外露現象。
檢查方法:觀察檢查。
允許偏差項目:
混凝土圓孔條板安裝的允許偏差應符合下表的規定。
隔墻板安裝允許偏差
項次 項目 允許偏差 (mm) 檢查方法
1 表面平整 2 用2m靠尺和楔形塞尺檢查
2 立面垂直 3 用2m托線板檢查
3 接縫高差 2 用直尺和塞尺檢查
4 陰陽角方正 3 用200mm方尺和尺檢查
5 陰陽角垂直 3 用200mm方尺和尺檢查
6 軸線偏移 5 用尺檢查
其他要求:
(1)接板安裝的條板隔墻,其安裝高度應符合下列要求:90mm厚條板接板安裝高度不應大于3.6m;120mm厚條板接板安裝高度不應大于4.2m;
(2)安裝條板時,應按隔墻長度方向豎向排列,尺寸不足時,可進行補割板,補板寬度不得小于200mm;
(3)條板下端與樓面結合處宜留出安裝空間,預留空隙在40mm以下,宜填入1:3水泥砂漿,40mm以上,宜填入干硬性細石混凝土,拆除木楔的預留孔隙應采用相同強度等級的砂漿或細石混凝土填塞振搗;
(4)鋼板卡固件固定應符合以下要求:a.條板隔墻與頂板、結構梁的接縫處,鋼卡間距不應大于600mm;b.條板隔墻與主體墻、柱的接縫處鋼卡可間斷布置,間距不應大于1m;c.
接板安裝的條板隔墻,條板上端與頂板、結構梁的接縫處應加設鋼卡,每塊條板不應少于2個。
(5)當在條板墻上橫向開槽、開洞敷設電氣暗線、暗管、開關盒時,所選隔墻的厚度應大于90mm。墻面開槽深度不應大于墻厚的2/5,開槽長度不得大于隔墻長度的1/2;嚴禁在隔墻兩側同一部位開槽、開洞,其間距應錯開150mm以上。開槽開洞的時間應在隔墻安裝后的7d進行;
(6)板與板之間相接處應采用如下防裂措施:a.應在板與板之間對接縫內填滿、灌實粘接材料。企口接縫處應粘貼耐堿玻璃纖維網格布條或無紡布條防裂;b.可采用全墻面粘貼纖維布、無紡布或鋼絲網抹灰處理墻面;c.沿墻長度方向,可在板與板之間間斷設置伸縮縫,接縫處使用柔性粘接材料處理;d.可采用加設拉結鋼筋加固及其他防裂措施;e.條板隔墻陰陽角處以及條板與建筑主體結構結合處應做專門防裂處理。如加設塑膠護角或局部粘貼防裂網布、掛鋼絲網抹灰處理等;
(7)采用空心條板做門窗框板時,距板邊120~150mm不得有空心孔洞,可將空心條板的第一孔用細石混凝土填實;
(8)門窗框板上部墻體高度大于600mm或門窗洞口寬度超過1500mm時,應采用配有鋼筋的過梁板或采取其他加固措施。門框板、窗框板與門、窗框的接縫處應采取專門的密封、隔聲、防裂等措施。
成品保護
注意混凝土圓孔條板的運輸和保管。運輸中應輕拿輕放,側抬側立并互相綁牢,坡度角大于850,不得平手抬平用放,嚴禁板長方向靠墻立放。堆放處應平整,下墊100mm×100mm木方,板應側立,墊木方距板端50cm。板如有明顯變形、無法修補的過大孔洞、嚴重的斷裂、裂縫或破損,不得使用。
板縫開裂是目前的質量通病。防止板縫開裂的辦法,一是使用的膠粘劑必須對路,二是板縫處理要嚴格按操作工藝認真操作。
安裝好的墻板,10d內不碰撞、不敲擊。
選擇膠粘劑十分關鍵,一定要慎重對待。
主要節點做法:
內隔墻板立面圖